Foto leveres af Google Street View og kan være upræcist:

Lejlighed til leje, Odense C, Se vej-navn[xxxxxxxxxx]

Se vej-navn[xxxxxxxxxx], 5000 Odense C
  • Lejlighed til leje
  • 44 m2
  • 5.204 kr. per måned
Lejlighed til leje, Odense C, <span class="blurred street" onclick="ProcessAdRequest(3208867)"><span class="hint">Se vej-navn</span>[xxxxxxxxxx]</span>
Se vej-navn[xxxxxxxxxx], 5000 Odense C
  • Lejlighed til leje
  • 44 m2
  • 5.204 kr. per måned
FÅ MERE INFO OM BOLIGEN
Du linkes til en anden portal, som evt. kan kræve betaling eller oprettelse

Lejlighed til leje, Odense C, Se vej-navn[xxxxxxxxxx]

Fakta

  • 3208867
  • Lejlighed
  • 44 m2
  • 1
  • 1.1.2026
  • 5.204 kr.
  • 15.612 kr.
FÅ MERE INFO OM BOLIGEN
Du linkes til en anden portal, som evt. kan kræve betaling eller oprettelse

Lejlighed til leje i 5000 Odense C

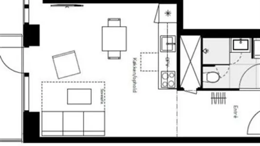
På Nyborgvej i August Have og som nabo til Fillippas Have udlejer vi lige nu en 1 værelses lejligheder på 44 m². Der er god bred entré med indbyggede spots i loftet og i entreen kan man have skrivebord m. m. .Der er flot flisebadeværelse med bruseniche og rainshower fra Grohe. Skabsarrangement med spejl fra Duravit samt egen vaskemaskine og tørretumbler af mærket Gram. Der er opsat Sonoshøjtaler i badeværelset.Lejlighedens fantastiske rum er opholdsrummet. Her er rigeligt med plads til spisebord og sofa/sovegruppe. Køkken og opholdsrum er i et. Der er udgang til fantastisk sydvendt terrasse eller altan.Køkkenet er fra designa og indeholder alle hårde hvidevarer, herunder opvaskemaskine af mærket Gram. Der er spots i overskabene.Overalt er der gulvvarme og der er lagt flotte lakerede egetræsgulve. Endvidere er der fuld kælder på ejenommen hvor der er depotrum til hver lejlighed. Der er elevator i ejendommen samt dørtelefon.Ydermere er der blødgøringsanlæg på ejendommen som minimerer kalken i vandet.Leje pr. mdr. kr. 5. 204,00 + varme kr. 400,00 + vand kr. 400,00.Depositum kr. 15. 612,00.Lejemålet fremvises tirsdag d. 21. oktober 2025 mellem kl. 15:00-15:45. Tilmelding er nødvendig.

Information og data

Denne bolig til leje ligger på Nyborgvej i Odense C. Odense C har postnummeret 5000, og ligger i kommunen Odense, som ligger i Odense. Boligen er i alt 44 m2 fordelt på 1 separate værelser. Boligen udlejes som almindelig lejebolig. Boligen er ledig fra 1.1.2026. Huslejen for lejeboligen er 5.204 kr. per måned. Du skal betale et depositum på 15.612 kr.


Dette er et søgeresultat. Klik dig videre til det eksterne website for at få mere info om boligen.